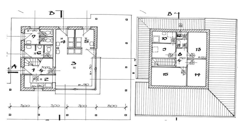
Balatonboglár Boglárka bisztró

A Balatoni Hajózási Zrt. ingatlanbérleti pályázatot hirdet a tulajdonát képező, Balatonboglár 1617 helyrajzi szám alatt nyilvántartott ingatlanon található 94,6 m2 területű üzlethelyiség és 102 m2 fedett terasz, továbbá 250 m2 szabadterület (Bérlemény) - tekintetében.
A bérlet időtartama szerződéskötéstől - 2028. december 15-ig tartó határozott időre szól.

A minimális bérleti díj: 3.600.000 Ft +Áfa/év.

A pályázati anyag eléréséhez előzetes jelentkezés szükséges a beszerzes@bahart.hu e-mail címen, ahol az elérhetőség (név, telefonszám, e-mail cím) megadása kötelező. Az előzetesen jelentkezők a jelentkezés tárgyával kapcsolatosan válaszlevélben részletes tájékoztatást kapnak a pályázat benyújtásával kapcsolatban.

 

Az előzetes jelentkezés határideje 2025.11.27.