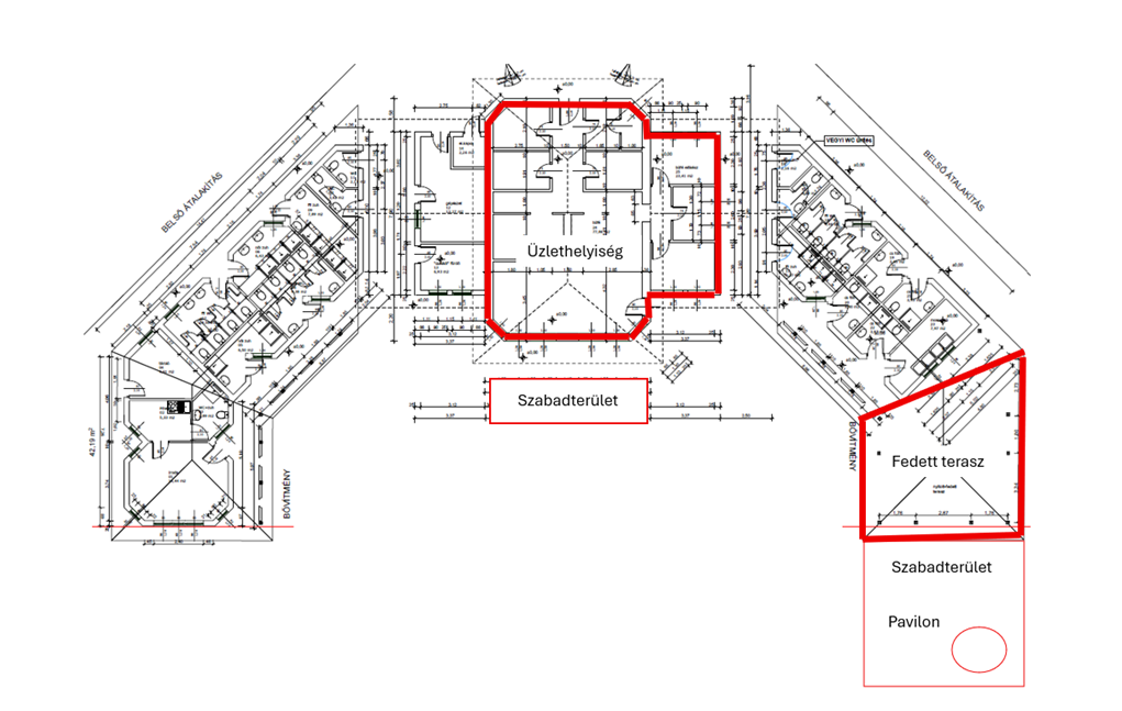
Balatonföldvár üzlethelyiség és szabadterület

A Balatoni Hajózási Zrt. ingatlanbérleti pályázatot hirdet a tulajdonát képező, Balatonföldvár 24 helyrajzi szám alatt nyilvántartott ingatlanon található 101,27m2 területű üzlethelyiség és 144m2 szabadterület, 41,75m2 fedett terasz, valamint a területen található pavilont (Bérlemény) - tekintetében.

A bérlet időtartama szerződéskötéstől -2028. december 15-ig tartó határozott időre szól.

A minimális bérleti díj: 8.000.000 Ft +Áfa/év.

A pályázati anyag eléréséhez előzetes jelentkezés szükséges a beszerzes@bahart.hu e-mail címen, ahol az elérhetőség (név, telefonszám, e-mail cím) megadása kötelező. Az előzetesen jelentkezők a jelentkezés tárgyával kapcsolatosan válaszlevélben részletes tájékoztatást kapnak a pályázat benyújtásával kapcsolatban.

 

Az előzetes jelentkezés határideje 2025.október 29.